Безмасляные винтовые компрессоры предназначены для питания промышленного пневматического оборудования и транспортных систем. Установки отличаются высокой производительностью, выносливостью, способностью стабильно работать в круглосуточном режиме. Винтовые компрессоры малошумные, практически не вибрируют, что позволяет монтировать их в непосредственной близости от рабочих мест.
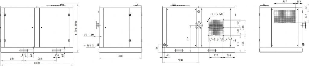
Компрессор ВK — стационарный, одноступенчатый безмасляный винтовой компрессор низкого давления с воздушным охлаждением. Компрессор смонтирован на собственной силовой раме и оснащен всеми соединительными трубопроводами и патрубками. Он предназначен для безмасляного сжатия воздуха, который используется в пневмотранспортных установках для перемещения сыпучих материалов (зерно, мука, сахарный песок, соль, химические грануляты, корма угольная пыль, древесные опилки, цемент, известь, измельченная порода и т.д.).
Безмасляные винтовые компрессоры
Стандартная комплектация компрессора включает в себя:
- винтовой блок (GHH RAND, Германия) с ременным приводом от электродвигателя;
- электродвигатель (SIEMENS, Германия), класс защиты IP 55;
- входной воздушный фильтр и глушитель;
- шумоглушитель с предохранительным клапаном и трубопроводом на выходе их компрессора, с встроенным обратным клапаном;
- систему смазки подшипников и зубчатых зацеплений с масляным насосом, фильтром и теплообменником для охлаждения масла;
- систему контроля, защиты и управления;
- систему пуска двигателя „звезда — треугольник“;
- виброизолирующие опоры для силового блока;
- звукоизолирующий корпус;
- прочную раму — основание, не требующую специального фундамента.
Опции:
- А — компрессоры открытого типа (без шумозащитного корпуса)
- О — с охладителем воздуха (для транспортировки сахара и гранул полимерных материалов)
Дизельный винтовой компрессор
Компрессоры серии ВС имеют следующие преимущества:
- высокую энергоэффективность по сравнению с винтовыми маслозаполненными компрессорами (до 18 м³/квт/час);
- низкие эксплуатационные расходы (замена масла 9 л, через 1 год эксплуатации, замена масляного фильтра через 5 лет эксплуатации, замена воздушного фильтра по показаниям датчика загрязненности, отсутствие фильтрасепаратора);
- отсутствие выброса масла в сжимаемый воздух (масло используется только для смазки подшипников и зубчатых зацеплений), что позволяет использовать наши компрессоры в пищевых и химических производствах;
- использование комплектующих от лучших мировых производителей гарантирует надежную и многолетнюю эксплуатацию компрессора.
Рекомендации по применению безмасляных винтовых компрессоров
| Сыпучие материалы | Рекомендуемая модель компрессора |
Производительность компрессора, м3/час |
|
|---|---|---|---|
|
Цемент, доломитовая мука, известь, гипс, мукa |
|
BК40 — 2,0 бар; 2,5 бар; BК50 — 2,0 бар |
400 ÷ 500 |
|
Сахар, соль, солод, песoк |
|
BК50 — 2,5 бар; BК60 — 2,0 бар; 2,5 бар (c охладителем воздуха) |
600 ÷ 700 |
|
Таблетки, гранулы, минералы, корма для животных на птицефермах |
|
BК60 — 1,5 бар; 2,0 бар; 2,5 бар; BК75 — 2,0 бар; BК100 — 2,5 бар (c охладителем воздуха) |
700 ÷ 1000 |